Présentation
INTRODUCTION
Cet article propose la simulation d’une installation sanitaire d’un appartement. Une fois les données techniques précisées (ressources, blocs sanitaires), le réseau d’eau froide est schématisé, soit par projection orthogonale, soit par représentation isométrique, avec les canalisations horizontales et verticales et l’ensemble de l’équipement prévu. Méthode empirique, ou méthode théorique (simplifiée ou basée sur les débits probables), plusieurs approches conduisent à la détermination du diamètre de la colonne montante et de celui des tronçons. Le calcul de la pression nécessaire à l’entrée de l’appartement se fait en évaluant les pertes de charge linéaires et singulières, mais aussi celles spécifiques à chaque appareil.
L‘approche est répétée à l’identique pour le réseau d’eau chaude. Là aussi, le professionnel est capable de déterminer les caractéristiques des canalisations et des éléments constituants l’ouvrage sans faire appel nécessairement aux lois fondamentales de la mécanique des fluides. Cependant, les mêmes méthodes théoriques peuvent être appliquées pour dimensionner la canalisation de départ et celles des tronçons. La pression au départ de la canalisation d’eau chaude sanitaire doit là aussi prendre en compte la somme des pertes de charge.
Ensuite, le choix du système de production d’eau chaude est complexe, celui de l’énergie évidemment prépondérant mais également le mode de production (instantanée ou par accumulation), la puissance calorifique et la capacité de stockage.
Basé sur le principe de la séparation des réseaux des eaux usées et eaux-vannes, le réseau d’évacuation est étudié en dernier. L’estimation porte alors sur le volume des rejets.
VERSIONS
- Version courante de mars 2024 par Thibault FOURCADE
DOI (Digital Object Identifier)
Cet article fait partie de l’offre
Techniques du bâtiment : le second oeuvre et les lots techniques
(90 articles en ce moment)
Cette offre vous donne accès à :
Une base complète d’articles
Actualisée et enrichie d’articles validés par nos comités scientifiques
Des services
Un ensemble d'outils exclusifs en complément des ressources
Des modules pratiques
Opérationnels et didactiques, pour garantir l'acquisition des compétences transverses
Présentation
| Plan de la page |
I - Schéma des réseaux
Représentation orthogonale
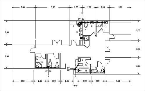
Les éléments principaux du réseau (canalisations horizontales, chutes, etc.,) sont repérés sur la projection orthogonale, plan d’architecte, où sont déjà localisés les appareils sanitaires. Cette représentation fait apparaître clairement que les réseaux sont groupés autour des chutes ( cf . Fig. 1 ).Schémas isométriques
Le schéma isométrique de l’ensemble n’offre pas d’intérêt, il suffira d’établir ceux qui représentent les évacuations des groupements « cuisine » et « salle de bains » ( cf . Fig. 2 ) avec le repérage des appareils et des tronçons correspondants.Cet article fait partie de l’offre
Techniques du bâtiment : le second oeuvre et les lots techniques
(90 articles en ce moment)
Cette offre vous donne accès à :
Une base complète d’articles
Actualisée et enrichie d’articles validés par nos comités scientifiques
Des services
Un ensemble d'outils exclusifs en complément des ressources
Des modules pratiques
Opérationnels et didactiques, pour garantir l'acquisition des compétences transverses
Éléments et méthodes de calcul
Cet article fait partie de l’offre
Techniques du bâtiment : le second oeuvre et les lots techniques
(90 articles en ce moment)
Cette offre vous donne accès à :
Une base complète d’articles
Actualisée et enrichie d’articles validés par nos comités scientifiques
Des services
Un ensemble d'outils exclusifs en complément des ressources
Des modules pratiques
Opérationnels et didactiques, pour garantir l'acquisition des compétences transverses
