Présentation
INTRODUCTION
Les forces et efforts sollicitant les coffrages sont variés, variables ou permanents, réparties ou non. De nature statique, avec le poids des matériaux, celui du béton fini, mais aussi dynamique, avec le personnel en mouvement, la poussée hydrostatique du béton frais, les vibrations et les forces du vent, ils demandent une étude approfondie au moment de la conception des coffrages. Leur estimation théorique et chiffrée est obligatoire, les pressions et affaissements doivent être évalués, la prise en compte des tolérances effectuée, afin de choisir structures et éléments de coffrage adaptés à ces sollicitations.
La connaissance des caractéristiques mécaniques et dimensionnelles des matériaux constitutifs de ces ouvrages est donc incontournable. L’article présente ainsi un ensemble de paramètres (contraintes, épaisseurs, cisaillement, limite élastique, portée admissible…) définissant le contreplaqué, le bois, l’acier, les alliages légers, ainsi que les normes afférentes à leur utilisation. En découlent en toute logique des hypothèses et méthodologies de calcul différentes selon qu’il s’agit de coffrages verticaux ou horizontaux.
Des exemples concrets portant entre autres sur le choix d’éléments de coffrage voile et dalle, le calcul de l’étaiement et la détermination de portée de raidisseurs, permettent au lecteur une mise en pratique complète.
DOI (Digital Object Identifier)
Cet article fait partie de l’offre
Techniques du bâtiment : préparer la construction
(138 articles en ce moment)
Cette offre vous donne accès à :
Une base complète d’articles
Actualisée et enrichie d’articles validés par nos comités scientifiques
Des services
Un ensemble d'outils exclusifs en complément des ressources
Des modules pratiques
Opérationnels et didactiques, pour garantir l'acquisition des compétences transverses
Doc & Quiz
Des articles interactifs avec des quiz, pour une lecture constructive
Présentation
| Plan de la page |
I - Choix des éléments constitutifs d’un coffrage pour dalle
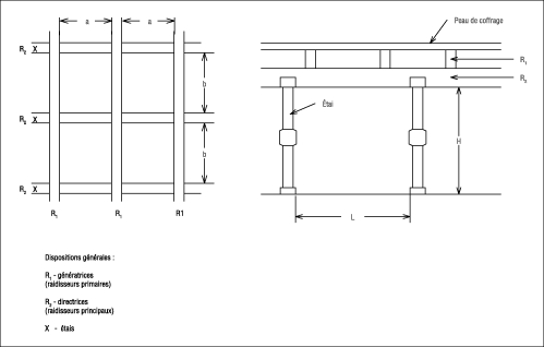
Les fabricants de matériel de coffrage et d’étaiement utilisent parfois une terminologie différente pour désigner les différents éléments composant le coffrage ( cf. Fig. 1 ). Les termes suivants sont ainsi équivalents :- raidisseurs primaires – génératrices – poutres secondaires ;
- raidisseurs principaux – directrices – poutres principales.
II - Méthodologie de calcul d’un coffrage de dalle
Les étapes du calcul du coffrage de dalle
Le calcul d’un coffrage de dalle comporte quatre étapes successives :
- On détermine les écartements des éléments R 1 supportant directement la peau de coffrage.
- On choisit la géométrie des éléments R 1 et on en déduit la portée, qui correspond donc à l’écartement des éléments R 2 .
- On choisit la géométrie des éléments R 2 et on en déduit la portée, qui correspond donc à l’écartement des étais.
- On calcule l’étaiement à partir des charges à supporter et des hauteurs entre la base des étais et la sous-face des...
Cet article fait partie de l’offre
Techniques du bâtiment : préparer la construction
(138 articles en ce moment)
Cette offre vous donne accès à :
Une base complète d’articles
Actualisée et enrichie d’articles validés par nos comités scientifiques
Des services
Un ensemble d'outils exclusifs en complément des ressources
Des modules pratiques
Opérationnels et didactiques, pour garantir l'acquisition des compétences transverses
Doc & Quiz
Des articles interactifs avec des quiz, pour une lecture constructive
Calcul des coffrages horizontaux
Cet article fait partie de l’offre
Techniques du bâtiment : préparer la construction
(138 articles en ce moment)
Cette offre vous donne accès à :
Une base complète d’articles
Actualisée et enrichie d’articles validés par nos comités scientifiques
Des services
Un ensemble d'outils exclusifs en complément des ressources
Des modules pratiques
Opérationnels et didactiques, pour garantir l'acquisition des compétences transverses
Doc & Quiz
Des articles interactifs avec des quiz, pour une lecture constructive
