Présentation
INTRODUCTION
Ici est abordé le soudage d’un matériau métallique.
Principe, utilisation, avantages, méthodes, terminologie, techniques de pointage (préparation des soudures proprement dites), et quelques notions d’électricité en guise de rappel, sont le point d’entrée de ce grand article complet.
Les principaux procédés de soudage, très nombreux, sont au centre de ce travail exhaustif :
-
la flamme oxyacétylénique ;
-
le soudage TIG (pour Tungsten Inert Glas) ;
-
le soudage à l’arc avec électrodes enrobées ;
-
les soudages MIG et MAG ;
-
le soudage avec fil fourré ;
-
le soudage à l’arc sous flux en poudre, nommé aussi « arc submergé » ;
-
le soudage par résistance par points qui a produit d’autres techniques dérivées comme le soudage par résistance à la molette, par bossages ;
-
le soudage par résistance électrique qui possède des variantes telles que le soudage en bout simple, ou en bout par étincelage, ou encore par induction ;
-
le soudage au plasma ;
-
le soudage par faisceau d’électrons ;
-
le soudage par faisceau laser ;
-
le soudage par friction ;
-
le soudage par explosion ;
-
le soudage électrique à l’arc pour éléments de fixation.
L’avant-dernière partie de l’article est ouverte sur l’évolution des procédés et techniques pour soudures sur des produits pré-peints ou des aciers galvanisés, sans omettre le sujet délicat de la réparation des soudures et de la corrosion des assemblages hétérogènes.
Enfin, la conclusion porte sur la question des contraintes et déformations d’origine thermique. On y trouve la description de la méthode curieusement nommée « chaude de retrait », ainsi que tous les calculs de vérification appropriés aux spécificités des assemblages par soudures.
Agrémenté d’une multitude d’exemples et de schémas descriptifs, ce travail est une mini-bible des techniques de soudage sur matériaux métalliques.
DOI (Digital Object Identifier)
Cet article fait partie de l’offre
Techniques du bâtiment : l'enveloppe du bâtiment
(131 articles en ce moment)
Cette offre vous donne accès à :
Une base complète d’articles
Actualisée et enrichie d’articles validés par nos comités scientifiques
Des services
Un ensemble d'outils exclusifs en complément des ressources
Des modules pratiques
Opérationnels et didactiques, pour garantir l'acquisition des compétences transverses
Présentation
| Plan de la page |
I - Phénomènes de retrait et leurs conséquences
Principe du phénomène de retrait
Dans une construction soudée, les déformations et les contraintes sont dues aux effets ponctuels de l’opération de soudage et au fait que celle-ci s’effectue de proche en proche.
Le gradient élevé de température, la diminution des propriétés élastiques du matériau quand la température s’élève font que des déformations plastiques et des contraintes naissent et s’établissent dans les pièces. Les déformations nécessitent un redressage long et donc coûteux des pièces. Les contraintes, plus insidieuses se développent à la fin du refroidissement et hypothèquent la bonne tenue en service de la construction. Aussi, pour compenser, atténuer ou se prémunir au mieux contre ces risques, il convient d’aborder les mécanismes du retrait.
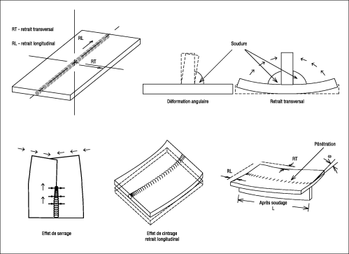
Les types de déformations élémentaires
Au cours de l’opération de soudage plusieurs types de déformations par retrait se superposent et modifient les formes et les dimensions initiales des éléments assemblés. On distingue habituellement quatre types de déformations élémentaires ( cf. Fig. 1) :
- deux déformations par translation dans le plan des éléments assemblés : un retrait transversal et un retrait longitudinal ;
- deux déformations par rotation : un effet de serrage et un effet de pliage.
Les contraintes et les déformations...
Cet article fait partie de l’offre
Techniques du bâtiment : l'enveloppe du bâtiment
(131 articles en ce moment)
Cette offre vous donne accès à :
Une base complète d’articles
Actualisée et enrichie d’articles validés par nos comités scientifiques
Des services
Un ensemble d'outils exclusifs en complément des ressources
Des modules pratiques
Opérationnels et didactiques, pour garantir l'acquisition des compétences transverses
Contraintes et déformations d’origine thermique
Cet article fait partie de l’offre
Techniques du bâtiment : l'enveloppe du bâtiment
(131 articles en ce moment)
Cette offre vous donne accès à :
Une base complète d’articles
Actualisée et enrichie d’articles validés par nos comités scientifiques
Des services
Un ensemble d'outils exclusifs en complément des ressources
Des modules pratiques
Opérationnels et didactiques, pour garantir l'acquisition des compétences transverses
