Présentation
INTRODUCTION
Après avoir dressé un panorama des composants industriels préfabriqués (suivant leur adaptation à la nature de l’ouvrage) dans l’article : Procédé des composants industriels TBA1200 , s’être intéressé à la préfabrication comme source éventuelle d’économie dans l’article : L'économie du projet TBA1210 et à la préfabrication du point de vue de l'entrepreneur dans l’article : TBA1215 , cet article présente quatre études de cas :
-
l’étude de la préfabrication pour la réalisation d’un bâtiment semi-préfabriqué (§1) ;
-
une étude concernant la recherche du mode constructif le plus adéquat pour un immeuble de six étages (§2) ;
-
une étude concernant la recherche de la méthode d’exécution de planchers à dalle pleine la plus économique dans le cadre de la construction d’un immeuble d’habitation (§3) ;
-
et enfin une étude permettant de définir une préfabrication de bâtiment industriel comportant des portiques en béton armé (§4).
Le lecteur est invité à consulter également les articles : Les matériaux constitutifs du béton armé TBA1105 , Les granulats courants pour béton TBA1110 , Les granulats légers TBA1112 , Les bases de calcul du béton armé TBA1120 , L'adhérence béton-acier TBA1125 , Les éléments en traction TBA1130 , Les éléments en compression TBA1132 , Le béton armé aux Eurocodes TBA1140 , pour plus d’informations sur le béton armé.
DOI (Digital Object Identifier)
Cet article fait partie de l’offre
Techniques du bâtiment : l'enveloppe du bâtiment
(131 articles en ce moment)
Cette offre vous donne accès à :
Une base complète d’articles
Actualisée et enrichie d’articles validés par nos comités scientifiques
Des services
Un ensemble d'outils exclusifs en complément des ressources
Des modules pratiques
Opérationnels et didactiques, pour garantir l'acquisition des compétences transverses
Présentation
| Plan de la page |
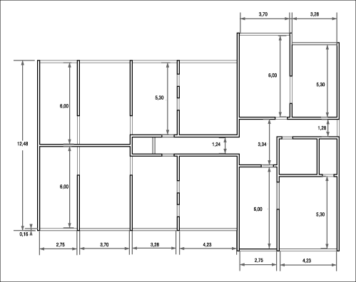
I - Descriptif sommaire
Structure
L’entreprise doit réaliser sur une ZAC un programme de 146 logements répartis sur 4 bâtiments A, B, C, D.
Ces bâtiments à sous-sol et R + 5 présentent une structure à refends porteurs en béton banché avec dalles pleines BA de 17 cm d’épaisseur ( cf . Fig. 1 ).
Tous les bâtiments sont semblables.
Bureau des méthodes
Le bureau des méthodes décide de comparer du point de vue économique trois modes de réalisation techniquement acceptables au regard du cahier des charges du programme :- la fabrication de prédalles foraines ;
- l’utilisation de tables coffrantes ;
- la commande de prédalles BA à un fournisseur.
II - Méthodologie
Critères à prendre en compte
L’étude comparative nécessite de rassembler les informations suivantes :- dénombrement des différentes travées ( cf . ...
Cet article fait partie de l’offre
Techniques du bâtiment : l'enveloppe du bâtiment
(131 articles en ce moment)
Cette offre vous donne accès à :
Une base complète d’articles
Actualisée et enrichie d’articles validés par nos comités scientifiques
Des services
Un ensemble d'outils exclusifs en complément des ressources
Des modules pratiques
Opérationnels et didactiques, pour garantir l'acquisition des compétences transverses
Choisir la méthode d’exécution de planchers à dalle pleine en immeubles d’habitation la plus économique
Cet article fait partie de l’offre
Techniques du bâtiment : l'enveloppe du bâtiment
(131 articles en ce moment)
Cette offre vous donne accès à :
Une base complète d’articles
Actualisée et enrichie d’articles validés par nos comités scientifiques
Des services
Un ensemble d'outils exclusifs en complément des ressources
Des modules pratiques
Opérationnels et didactiques, pour garantir l'acquisition des compétences transverses
